It All Begins Here

This project involved a full interior renovation and second floor addition within a lake community. The homeowners required expanded living space to accommodate out-of-town family while preserving a warm, lakefront character.

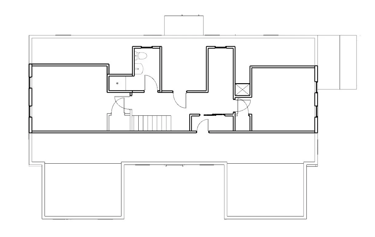
We evaluated the initial architectural plans and refined the layout to better align with circulation, gathering spaces, and long-term functionality.

Original Exterior House

Original Exterior

The first floor was reconfigured to include privacy to guest rooms, a full dining experience, and flow that worked within the household and for guests.

Original First Floor Layout

Reconfigured First Floor Layout

The second floor we took to a full second floor instead of a half, moved our primary suite and laundry, and added an additional guest room and workout room.

Original Second Floor Layout

Reconfigured Second Floor Layout

We accomplished a new layout through thoughtful questions, listening to what is said, and blending function, flow, and aesthetics.

Three-dimensional modeling allowed the homeowners to evaluate ceiling heights, balcony proportions, and structural transitions before framing began.

Currently in Progress…

Updates coming soon!